Nhà ống đẹp phá cách trong ngõ nhỏ ở Hà Nội
Hà Nội đang bị ô nhiễm nặng, không khí ngột ngạt, thường xuyên ngập lụt, tuy nhiên, căn nhà này lại được thiết kế rất khoa học và sáng tạo.
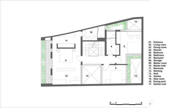
Tọa lạc trên một khu đất hình thang có nhiều góc cạnh thường là một bất lợi, nhưng các kiến trúc sư đã tận dụng lợi thế đó để làm cho không gian trở nên vuông vức và dễ dàng xây dựng hơn, và các góc hẹp được tối ưu để tạo ra các khoảng trống cho ánh sáng kết hợp với các mảng xanh.

Tầng 1 căn nhà tràn đầy ánh sáng với lối thiết kế khác biệt.

Khu vực giếng trời được trồng nhiều cây xanh mang đến sự mát mẻ cho căn nhà vào mùa hè.

Cây leo được trồng trên các tường.

Phòng khách và bếp thông nhau khiến không gian rộng hơn.

Phần lớn các không gian chức năng chính đều có 2 mặt, một dành cho ánh sáng tự nhiên và mặt đối diện là dành cho không gian xanh.

Sự kết hợp không gian xanh với vật liệu tự nhiên địa phương giúp cho ngôi nhà trở nên đặc biệt hơn.


Phòng tắm luôn tràn ngập ánh sáng.

Khu vực làm việc thoáng đãng trong căn nhà.

Khu vườn trên tầng thượng không chỉ giúp bảo vệ các thành viên trong gia đình khỏi các nắng trực tiếp của mặt trời, tiếng ồn và ô nhiễm mà còn cung cấp một nguồn rau sạch dồi dào cung cấp đủ cho gia đình.

Hệ thống thông gió từ ngoài vào trong giúp cho ngôi nhà tiết kiệm năng lượng hiệu quả trong khí hậu khắc nghiệt của miền Bắc.




Lan Nhi
Theo Trí thức trẻ
















Bình luận mới nhất